Appartement en location à Saint-Jean-de-Braye
Détails
-
Pièces3
-
Chambres2
-
Salles de bain1
-
Construction2023
-
Terrain180 m²
-
Type
Description du bien
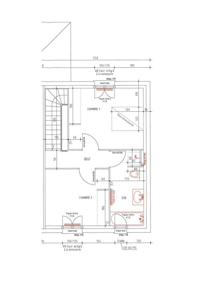
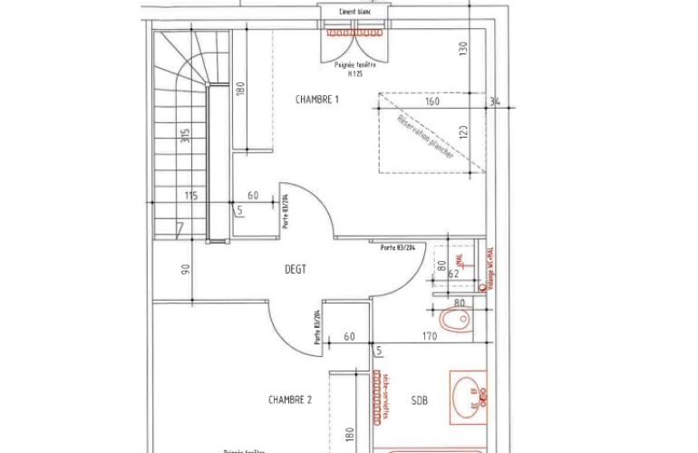
ST JEAN DE BRAYE, 87 RUE JEANNE D’ARC, Appartement NEUF en DUPLEX de type F3 de 64.90 m2 comprenant au RDC: Entrée avec placard dans cuisine aménagée et équipée (four, plaques de cuisson et hotte), séjour donnant sur terrasse et jardinet, WC avec lave-mains. A l’étage: Palier avec placard, deux chambres avec placard, salle de bains + WC. Un local à vélos. Chauffage individuel au GAZ. Libre le 18/12/2025
Les informations sur les risques auxquels ce bien est exposé sont disponibles sur le site Géorisques : www.georisques.gouv.fr
Montant d'honoraires : 832 € TTC dont 192 € de frais d'état des lieux
Détails
-
Référence :1_A2
-
Construction :2023
-
Terrain :180 m²
-
Surface habitable :64.9 m²
-
Pièces :3
-
Chambres :2
-
Salles de bain :1
-
WC :2
-
Nombre d'étages :2
-
Terrasse :OUI
-
Cave :NON
-
Cuisine :Aucune
-
Chauffage :Individuel gaz radiateur
-
Dépôt de garantie :787 €
-
Charges* :30 €


